Via Lodovico il Moro 57
20143, Milano (MI)
ITALIA
Phone:+39 3473026801
Email: info@solido-studio.it
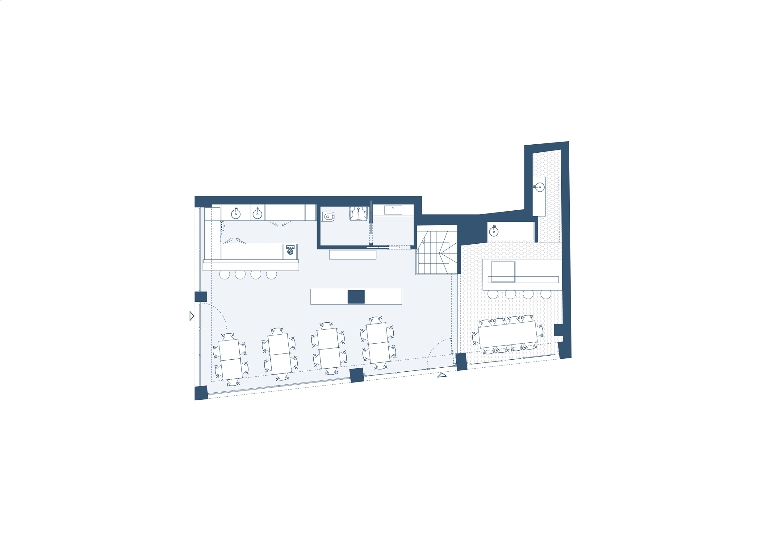
Cocktail Bar/Tavola Fredda
Il progetto mira a evidenziare la dualità delle funzioni all'interno dello spazio: servizio diurno per colazioni e pranzi, e servizio serale/notturno focalizzato su aperitivi e cocktail.
Questa distinzione si riflette nella creazione di due banchi servizio autonomi, ciascuno con funzioni e atmosfere specifiche durante il giorno. Tale separazione consente una caratterizzazione distintiva delle due aree, pur mantenendo un legame attraverso uno stile estetico industriale e contemporaneo.
Si è dedicata particolare attenzione agli elementi preesistenti, valorizzando in modo mirato le parti strutturali a vista, come le colonne in cemento armato e i muri portanti in mattoni pieni. Inoltre, si è prestata cura alla valorizzazione degli elementi demoliti legati alle precedenti attività, conferendo loro un ruolo significativo nel contesto del progetto.










